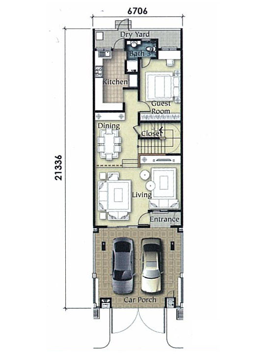
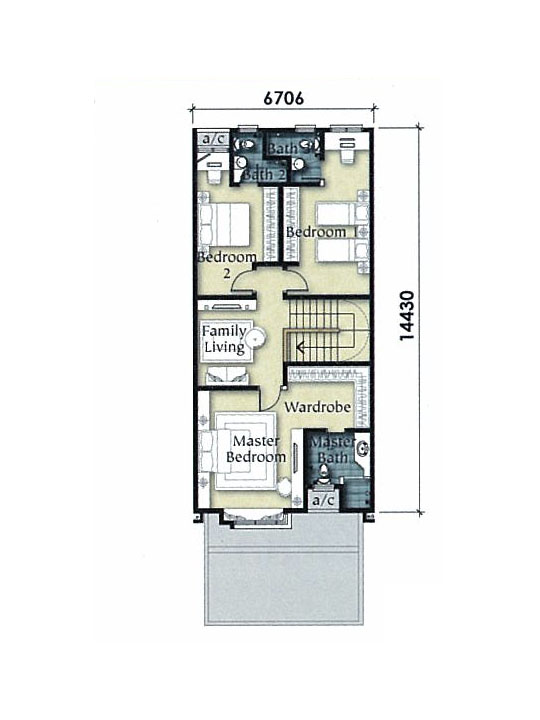
SURIA II
RD3A TYPE F     


Lot Size : 22' x 70'
Gross Built-up : 2,370 sq.ft.
No. of units : 110
Year of completion : 2010


Just like the sun, Suria is a ray of light that is central to your life. A home that will enable your family to grow roots and soak in all that life has to offer. This cosy home has a rustic feel with contemporary looks. Suria home owners will note the volumous living space, a practical layout and the quality build. Come and bask in the light of Suria.
 

 
Floor Plan
     
 
Ground Floor Plan First Floor Plan  
click floor plan to enlarge